Public Bench Design

The aim is to create a multifunctional piece of public furniture for a workshop area that integrates storage, seating, aesthetics, and flora, while minimizing waste and boosting the energy of the space with vibrant materials and colors. The design should respond to the many demands of users while also making the area feel more lively and productive. Modules should be portable so that users can take it outside during workshop hours. The furniture must prioritize sustainability by using recycled or scrap materials and employing waste-minimizing production methods, all while keeping the design simple and cost-effective for easy replication. Finally, it should improve the user experience by adding a multipurpose, visually appealing, and long-lasting feature
The
Design Brief




The Space for the Intervention
Initial Ideas









Final Design
Perspective View

Side View



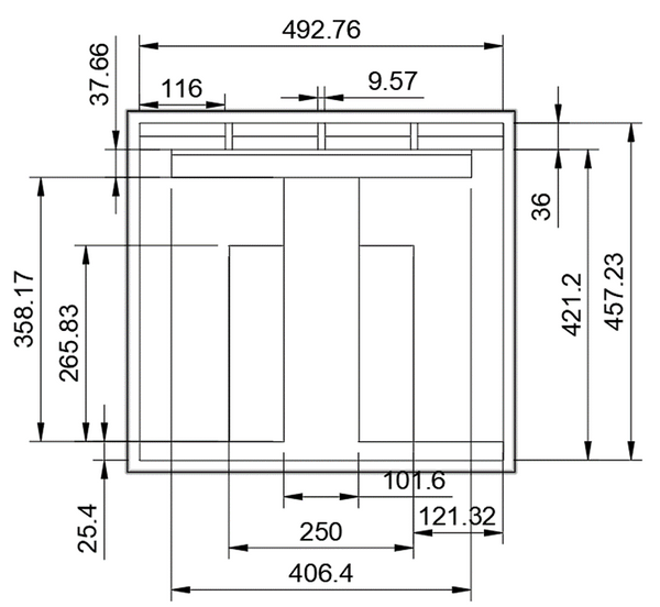
Top View

Front View
Perspective View

Technical Sketches


Top View
Front View
Side View
Big picture
or
‘The Purpose’
The aim was to create a multifunctional piece of public furniture for a workshop, and café area that integrates storage, seating, aesthetics, and flora, while minimizing waste and boosting the energy of the space with minimalistic and industrial looks, while also incorporating plants. The furniture prioritizes sustainability, as quite a bit of the materials used are recycled or scrap materials sourced from around the campus. Also, careful planning has gone while cutting and using the materials, to keep waste minimum, all while keeping the design simple and cost-effective for easy replication. Finally, it improves the space by adding a simple, elegant, multipurpose, visually appealing, and long-lasting piece of furniture that boosts the targeted area.
​
This piece of furniture will primarily be used by the students that use the workshop areas, and also, the users that come to access the café, once it is operational. It serves as a seating area for both kinds of users mentioned above. Apart from this, the furniture also serves as a planter that can accommodate different size planters. This will be useful in making the target area more visually appealing, thus attracting more users to use the furniture. Additionally, this space can also be used as storage for users to store their belongings while using the workshop areas.